Kitchen Remodeling Houston, TX
Kitchen Remodeling in Houston, TX – Designed for the Way You Live
Your kitchen should work as hard as you do. A well-planned remodel goes beyond new cabinets and countertops it reshapes how you cook, gather, and move through your home. At TopTexan Remodeling, we create custom kitchen remodels in Houston that focus on smart layouts, efficient storage, and timeless design. Whether you’re reworking a compact kitchen for better flow or planning a high-end kitchen renovation with premium finishes, our team designs spaces that balance practicality and visual appeal. Every detail is tailored to your routine, style, and goals—resulting in a kitchen that feels intentional, comfortable, and built for everyday life.
Benefits of Kitchen Remodeling
A kitchen remodel does more than change how your space looks—it changes how you live in it. When the layout flows better, storage is thoughtfully planned, and counter space is maximized, the kitchen becomes a space that supports your day instead of slowing it down. For busy households, improved circulation and smart zoning make it easier for multiple people to cook, clean, and move comfortably at the same time. For those who love to entertain, open layouts and spacious islands create a natural gathering place where cooking and conversation happen together.
From a financial perspective, kitchen renovations remain one of the strongest home investments. An updated kitchen consistently boosts resale value and buyer interest, whether you plan to sell soon or years down the road. Modern appliances, efficient lighting, and sustainable materials also help reduce ongoing energy costs. Beyond the numbers, the biggest reward is daily—having a kitchen that feels organized, welcoming, and enjoyable every time you step into it.
Our Kitchen Remodeling & Renovation Services
Full Kitchen Remodels
Reimagine your kitchen as a space that truly works for you. We take kitchens from dated and inefficient to open, modern, and tailored to your lifestyle, focusing on how you cook, gather, and move through the space. Whether it involves reworking the layout or a full design transformation, every decision is made with purpose.
From initial planning and design through construction and final finishes, we manage the entire process end to end. With experienced craftsmanship and careful attention to detail, we turn your vision into a kitchen that feels cohesive, functional, and built for everyday living.
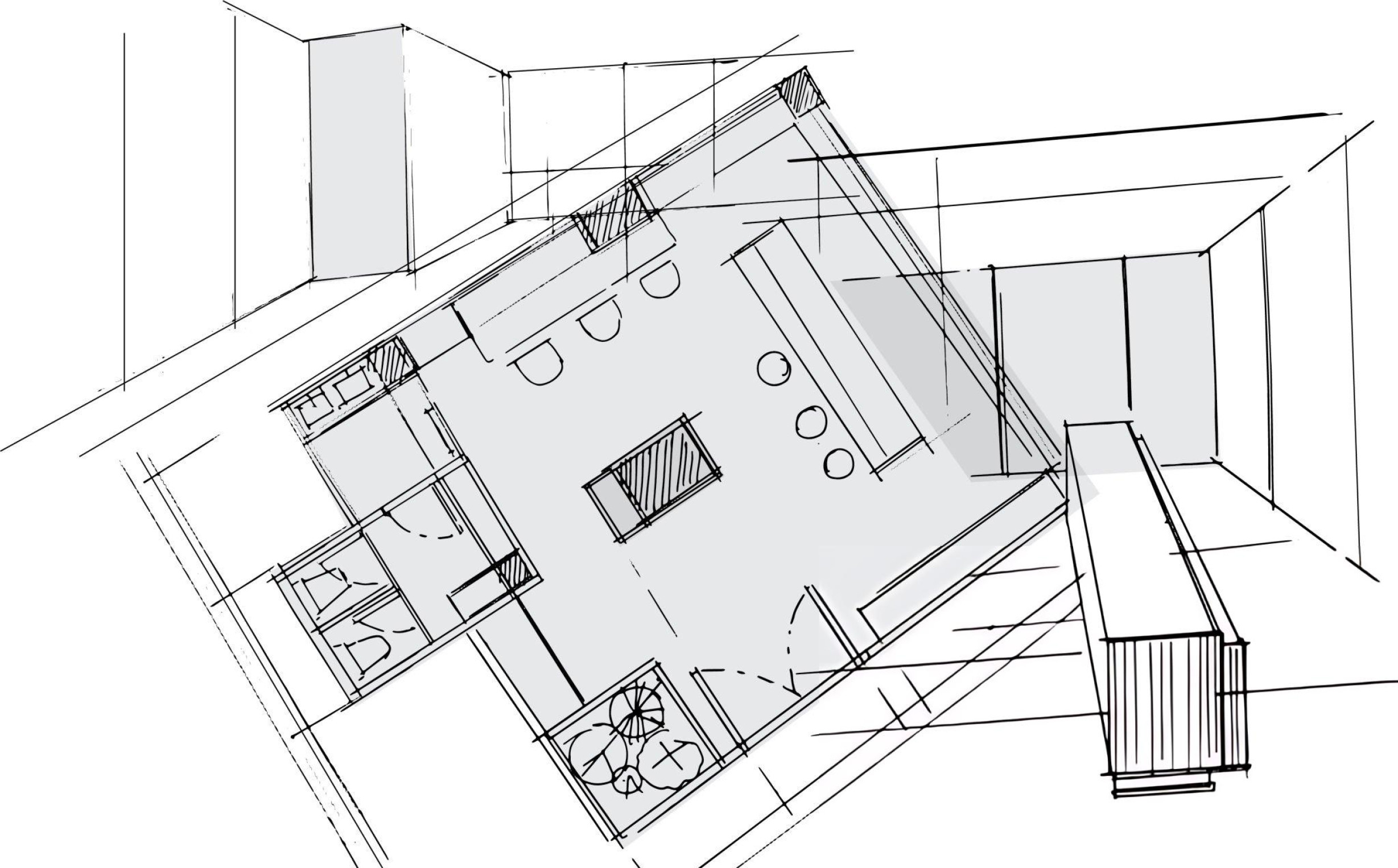
Kitchen Layout & Space Planning
If your kitchen feels tight or inefficient, we’ll redesign the layout to improve flow, organization, and ease of movement. From rethinking traffic patterns to adding smarter storage solutions, we focus on making the space work better for how you use it. Whether you prefer an open-concept kitchen or a more defined, structured layout, we create floor plans that are practical, balanced, and tailored to your needs.
Custom Cabinets & Storage Solutions
Your cabinets should support your daily routine—not get in the way of it. We design custom and semi-custom cabinetry tailored to your kitchen’s layout, storage needs, and personal style. From sleek modern designs to timeless classic finishes, we help you select cabinets that maximize organization, improve usability, and look exceptional for years to come.
Countertops & Surfaces
Upgrade your countertops with high-quality, long-lasting materials designed to suit how you live and cook. Whether you’re drawn to the durability of quartz, the natural beauty of granite, the warmth of butcher block, or the elegance of marble, we’ll guide you through the best options based on maintenance needs, performance, and design style—so your countertops look great and work hard every day.
Kitchen Islands
Enhance your kitchen’s functionality and flow with a custom-designed island built around how you use the space. We create kitchen islands that provide extra prep surfaces, casual seating, smart storage solutions, and integrated appliances, all tailored to your cooking habits and lifestyle. The result is a centerpiece that brings convenience, comfort, and balance to your kitchen.
Lighting & Fixtures
Great lighting transforms a kitchen from ordinary to inviting. We use a layered lighting approach—combining ambient, task, and accent lighting—to create a space that feels warm, functional, and well-balanced. From under-cabinet LED lighting to statement pendants and recessed fixtures, every element is thoughtfully placed to ensure your kitchen looks great and works beautifully at all hours.
Flooring That Works for You
We offer a wide selection of kitchen flooring options designed for durability, comfort, and easy maintenance. Whether you prefer the classic look of tile, the warmth of hardwood, or eco-friendly choices like cork, we’ll help you select the ideal flooring that fits your lifestyle, cooking habits, and design vision.
Our Kitchen Remodeling Projects
Why Choose TopTexan Remodeling for Your Kitchen Remodel?
Your kitchen isn’t just where meals are made it’s where daily life happens. At TopTexan Remodeling, we understand that a successful kitchen remodel must balance function, comfort, and design. That’s why Houston homeowners trust us to create kitchens that truly work for their lifestyle.
- Experienced Houston Kitchen Remodeling Professionals: Our team brings years of hands-on experience remodeling kitchens across Houston. We know how to design spaces that improve flow, maximize storage, and stand up to everyday use without sacrificing style.
- All-Inclusive Kitchen Remodeling Services: We handle every part of the project, from layout planning and space optimization to custom cabinetry, countertops, lighting, flooring, and finishes. With one dedicated team managing the entire process, your remodel stays organized and efficient.
- Design Focused on You: Your vision leads the way. We take the time to understand how you use your kitchen, what you love, and what needs to change. Every decision is made collaboratively to ensure the final result feels personal, functional, and exactly right for your home.
- With TopTexan Remodeling, your kitchen remodel is more than an upgrade—it’s a thoughtful transformation of the most important space in your home.
kitchen RemodelING FAQs
Let’s Discuss Your kitchen Remodeling Project Today
Take the first step toward turning your kitchen into the true heart of your home. Contact TopTexan Remodeling today to schedule your kitchen design consultation and receive a custom kitchen remodel estimate. Whether you’re planning a luxury kitchen renovation or a simple, functional update, our experienced team is ready to bring your vision to life with thoughtful design, quality craftsmanship, and a smooth remodeling process.



















